Appartamento Trilocale nel Cuore di Padova
Descrizione
Nel cuore pulsante di Padova, proponiamo in vendita un raffinato appartamento trilocale che rappresenta l'ideale per chi cerca comfort e modernità. Situato al primo piano con ascensore all'interno di un prestigioso edificio recentemente ristrutturato, questo immobile si distingue per la sua classe energetica A/4+ garantendo così un massimo risparmio energetico grazie alle tecnologie costruttive all'avanguardia.
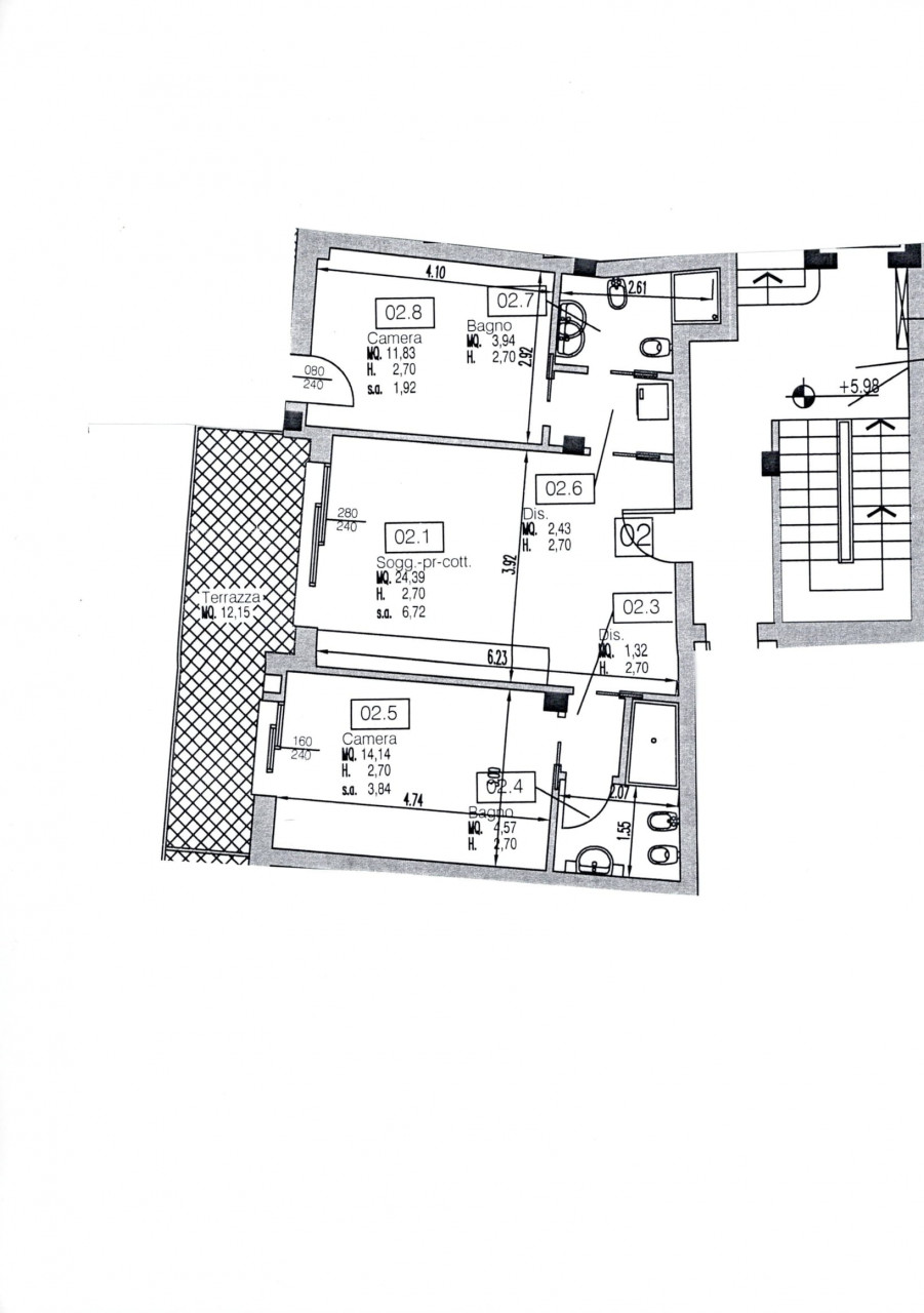
Con una superficie totale di 90 mq, gli spazi interni sono stati progettati con cura per offrire luminosità e funzionalità. L'appartamento è composto da un accogliente soggiorno dotato di cucina integrata, perfettamente arredabile e ideale per momenti conviviali. Le due camere da letto spaziose assicurano privacy e tranquillità, rendendole perfette sia per famiglie che per professionisti.
Dispone di due bagni, ulteriore punto forte dell'immobile è la terrazza abitabile di quasi 15 mq: uno spazio esterno dove poter godere momenti relax.
Per completare questa offerta esclusiva vi è anche la possibilità di avere un garage a scelta (non incluso nel prezzo), aggiungendo comodità alla già ricca proposta immobiliare.
La posizione centrale permette facile accesso ai principali servizi della città: negozi, ristoranti e mezzi pubblici sono tutti nelle immediate vicinanze.
In ottemperanza alla Legge sulla Privacy, l'indirizzo ed il puntatore riportato nell'annuncio e nella mappa sono di carattere indicativo e non corrispondono all'indirizzo esatto in cui è ubicato l'immobile, come pure le foto sono puramente ad uso illustrativo.
Con una superficie totale di 90 mq, gli spazi interni sono stati progettati con cura per offrire luminosità e funzionalità. L'appartamento è composto da un accogliente soggiorno dotato di cucina integrata, perfettamente arredabile e ideale per momenti conviviali. Le due camere da letto spaziose assicurano privacy e tranquillità, rendendole perfette sia per famiglie che per professionisti.
Dispone di due bagni, ulteriore punto forte dell'immobile è la terrazza abitabile di quasi 15 mq: uno spazio esterno dove poter godere momenti relax.
Per completare questa offerta esclusiva vi è anche la possibilità di avere un garage a scelta (non incluso nel prezzo), aggiungendo comodità alla già ricca proposta immobiliare.
La posizione centrale permette facile accesso ai principali servizi della città: negozi, ristoranti e mezzi pubblici sono tutti nelle immediate vicinanze.
In ottemperanza alla Legge sulla Privacy, l'indirizzo ed il puntatore riportato nell'annuncio e nella mappa sono di carattere indicativo e non corrispondono all'indirizzo esatto in cui è ubicato l'immobile, come pure le foto sono puramente ad uso illustrativo.
Riferimento
SS-O2
Prezzo
390.000 €
Mq
90
Tipologia
Appartamento
Contratto
vendita
Comune
Padova
Zona
Centro Storico
Anno di costruzione
2024
Camere
2
Bagni
2
Ambienti
| Soggiorno angolo cottura | |
| Terrazzi | 1 |
| Garage | 1 |
Livelli & comfort
| Livelli | Primo piano |
| Aria condizionata | |
| Pannelli fotovoltaici | |
| Riscaldamento autonomo | |
| Accesso disabili | |
| Numero accessi carrai | 1 |
| Numero portoni | 1 |
| Predisposizione allarme | |
| Tapparelle motorizzate |